コンポスト計画 2025
山の屋敷SDGsの一環としての提案
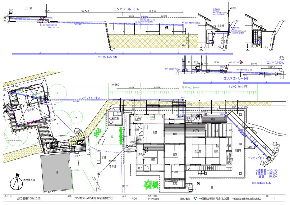
広大な山の 小屋に 浄化槽はいらない!
<AB案>
屋敷SDGsの一環で
これはコンポストトイレの実証実験です!
ようこそarthillへ!
一級建築士事務所マルオカ設計
DIY(自作)
一期一会